Používame cookies

Táto internetová stránka používa technológiu cookies. Bližšie informácie o súboroch cookies nájdete v sekcii webstránky: Pravidlá cookies  Je Vaším právom neudeliť súhlas s používaním súborov cookies alebo ich používanie zablokovať. V takom prípade sa môže stať, že bude pre Vás obmedzená alebo vylúčená úplná funkcionalita niektorých častí prehliadanej webovej stránky. Viac info

 

Neibrs | 2 izb. byt s balkónom v TEHLE, Očovská ul., Stará Petržalka

Ulica: Očovská
Obec: Bratislava-Petržalka
Okres: Bratislava V
Kraj: Bratislavský kraj
Druh: Byty
Typ: Predaj
Typ bytu: 2-izbový byt
249 000 €

Popis nehnuteľnosti

Realitná kancelária Neibrs ponúka exkluzívne na predaj dvojizbový byt s balkónom v tehlovom bytovom dome v jedinečnej lokalite Starej Petržalky na Očovskej ul.

Predstavujeme Vám jedinečná ponuku bytu v lokalite, ktorá je známa predovšetkým svojou netradičnou nízkopodlažnou tehlovou zástavbou v rámci sídliskového charakteru tejto bratislavskej štvrti. Očovská ulica je tvorená tehlovými obytnými objektmi medzi rodinnými domami, čo je pre Petržalku výnimočné.

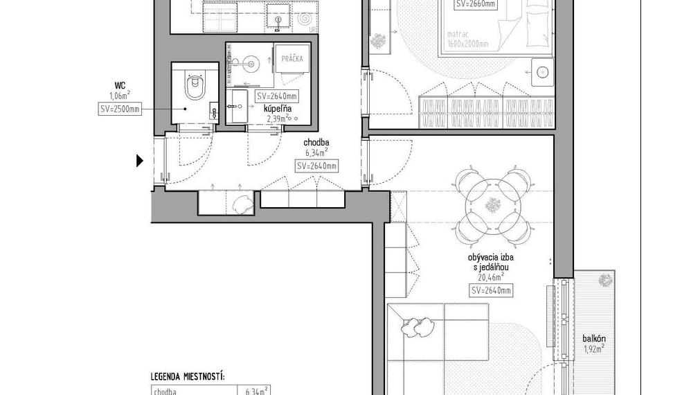
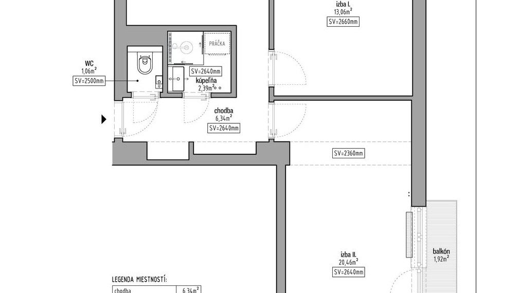
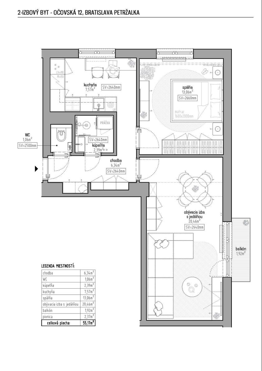
Byt na 2. NP o výmere 51 m2 prešiel čerstvou kompletnou rekonštrukciou vrátane nových elektrických rozvodov a rozvodov vody. Rekonštrukcia pozostávala aj z nových omietok, stierok, malovky a kompletnej prerábky kúpelne a WC. V samostatnom WC nechýba umývadlo. Všetky materiály použité pri prerábaní boli vyberané s dôrazom na kvalitu. Vchodové dvere sú bezpečnostné značky ADLO. Interiérové dvere sú tiež kompletne vymené za nové.

V roku 2015 prebehla výmena okien za plastové značky Schuco s izolačným trojsklom. V celom byte sa nachádza nová masívna dubová podlaha s V drážkou s celkovou hrúbkou 14 mm.

K Bytu prislúcha balkón o výmere 2 m2, kde bola taktiež vymenená dlažba. K celkovému dizajnu bytu prispieva nové LED osvetlenie s možnosťou regulácie teploty a intenzity na diaľkové ovládanie.

Stúpacie rozvody v bytovom dome kolaudovanom v roku 1968 boli tak isto nedávno vymenené. Ďalšia revitalizácia BD vrátane obvodového plášťa je plánovaná.

Benefitom bytu je prislúchajúca murovaná pivnica o výmere 2,5 m2 s vymenenou novou dlažbou a osvetlením. Výhodou je taktiež spoločná miestnosť na prízemí bytového domu, ktorá môže poslúžiť na odkladanie bicyklov či kočíka.

Očovská ulica v tzv. Starej Petržalke je výnimočná rodinnou atmosférou, kde je len pár jedinečných bytových jednotiek. Ide o tichú lokalitu plnú zelene s kvalitným susedstvom, občianskou vybavenosťou a výbornou dostupnosťou do centra. V tesnej blízkosti sa nachádza zdravotné stredisko Záporožská, Lekáreň, Supermarket, kostol, letné kúpalisko Matadorka , viacero reštaurácií a kaviarní. V blízkosti je tiež Železničná vlaková stanica, Vienna Gate, Petržalské korzo a zastávky MHD.

CENA: 249.000,- Eur vrátane právneho a realitného servisu Neibrs
COPYRIGHT Neibrs, s.r.o. – Fotografie, obrázky a texty sú autorským dielom a majetkom realitnej kancelárie Neibrs

Vlastnosti

Status:
aktívne
Stav:
úplne prerobený
Úžitková plocha:
55.5 m2
Poschodie:
2
Počet poschodí:
4
Balkón:
áno
Energetický certifikát:
B
Zateplený objekt:
nie
Vykurovanie:
spoločné

Informatívna úverová kalkulačka

Pozrieť na mape

Maklér

Rastislav Nemčík

Rastislav Nemčík

RIADITEĽ REALITNEJ KANCELÁRIE

Ako zakladateľ a riaditeľ realitnej kancelárie Neibrs sa riadim pri práci filozofiou odbremeniť ľudí od starostí pri kúpe a predaji nehnuteľnosti, a vediem k tomu aj svoj tím. Som hrdý, že spoločne našim klientom v cieli obchodu vyslovujeme, Neibrs, Welcome home.

Radi Vám poradíme

Podobné nehnuteľnosti